Retour aux annonces
Exclusivité
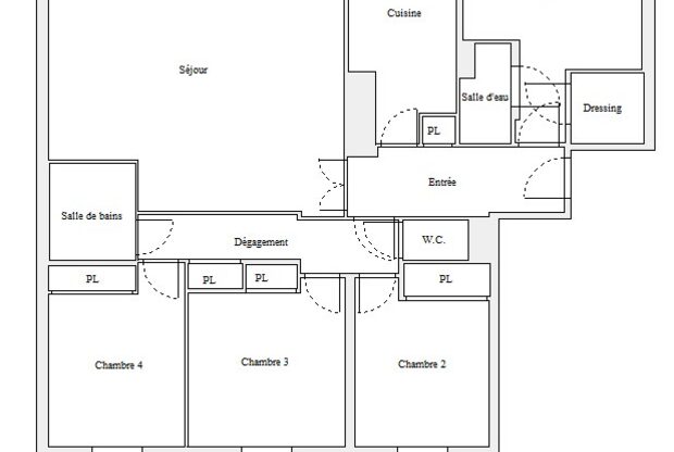
Appartement 6 Pièces, 95 m² environ
Appartements - 6 Pièces, 95 m² environ
Pavillons sous Bois (93) Alliance - Commerces - Tram T4- Ecoles 5'
Vendu
270 000 €
Mise à jour : 3/18/2026
Référence : 17957
honoraires charge vendeur











